Widok istniejącej przestrzeni przeznaczonej pod obsługę klienta stacji kontroli pojazdów

Na wprost wejścia, w tle, na ścianie duża grafika imagowa z przestrzenną nazwą firmy. Po prawej stronie pojemna szafa biurowa na archiwum. Oddzieleniem strefy klienta od obsługującego wysokim kontuarem. Po lewej stronie kawa, kubeczki, woda w butelkach. Powyżej ekran lcd. Obok wieszaki na odzież wierzchnią klientów. Po prawej stronie, przy wejściu strefa poczekalni. Charakterystyczny stolik oraz cennik usług na ścianie. Analogia pomysłów, materiałów wykończeniowych i akcentów dekoracyjnych obu punktów obsługi ma informować klienta już od drzwi wejściowych, iż dbałość o szczegóły to istotna cecha wszystkich procesów i działań prowadzonych w firmie Ramusiewicz.

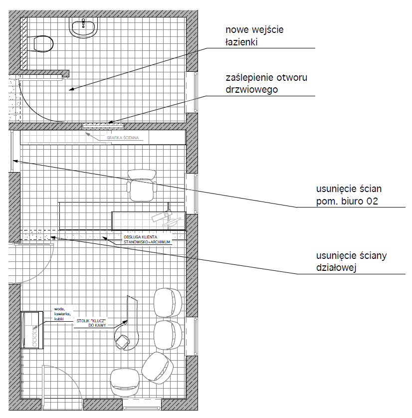
Propozycja nowego układu funkcjonalnego biura obsługi klienta stacji kontroli pojazdów zakłada usunięcie ściany działowej oraz zaślepienie jednego otworu drzwiowego. Nowe wejście do łazienki przez wnękę przedsionka na bezkolizyjne otwarcie drzwi. Dzięki tym zmianom otrzymujemy otwartą przestrzeń z czytelnie wydzieloną strefą klienta – poczekalni oraz punkt obsługi. Stanowisko obsługującego wydzielone dużym biurkiem z nadstawką. Kontuar ma stanowić barierę nie przekraczalną dla klienta. Dodatkową blokadą dla próbujących wejść w strefę obsługującego jest przeszklenie w miejscu obecnych drzwi do części socjalnej – pracownicy warsztatu będą mieli wgląd w to co dzieje się w punkcie obsługi klienta. Transparentność tej przestrzeni wzmocni wymiana drzwi z warsztatu na szklane.